Tel.: +49 (0) 228-6205859 /  Fax.: +49 (0) 228-6205860 / info@bonnbau.de / Wir freuen uns auf Ihre Anfrage.

Individuell Bauen
zum Festpreis / m²
Individuell Planen
im Festpreis enthalten
Sicher und schnell bauen
Kalkulation in 5 Werktagen
Massiv Bauen -
Stein auf Stein
Gutachten und Sanierung

Individuell Bauen
zum Festpreis / m²
Individuell Planen
im Festpreis enthalten
Sicher und schnell bauen
Kalkulation in
5 Werktagen
Massiv Bauen
Stein auf Stein
Gutachten und Sanierung

Planungsbeispiele

Jedes Haus ist ein Unikat

Frei geplante Häuser zu fairen Festpreisen

Auf dieser Seite finden Sie eine Vielzahl von Gestaltungsvorschlägen und Grundrissvorschlägen für Massivhäuser bzw. Neubau-Projekte.

Lassen Sie sich inspirieren und planen mit uns ihr individuelles Massivhaus.

Planung und Bausausführung

Architekt und Bauleiter stehen bei der Planung Ihres Neubauvorhabens, Ihrer Altbausanierung oder Ihrer Hausmodernisierung zur Verfügung.

Auf Wunsch erstellen wir Ihnen nach einem Planungsgespräch einen möblierten Vorentwurf Ihres Projektes. Des Weiteren erhalten Sie eine 3-D-Animation Ihres Neubauvorhabens oder sonstigen Projektes.

Jedes Bauvorhaben wird durch einen Bauingenieur / Architekten begleitet.

Gerne stellen wir den Kontakt zu anderen Bauherren her.

Stadtvilla mit rd. 150 m² nach DIN

Gestaltungsvorschlag – Massivhaus SV 150

EG – Massivhaus SV 150

OG – Massivhaus SV 150

Stadtvilla – Wohnfläche nach DIN rd. 138 m²

Gestaltungsvorschlag – Massivhaus SV 138

KG – Massivhaus SV 138

EG – Massivhaus SV 138

OG – Massivhaus SV 138

Stadtvilla mit rd. 150 m² nach DIN – Moderne Frontoptik –

Gestaltungsvorschlag – Massivhaus SV 150 m

EG – Massivhaus SV 150 m

OG – Massivhaus SV 150 m

Stadtvilla mit klassischen Stilelementen – Balkon – Fläche nach DIN rd. 150 m²

Gestaltungsbeispiel – Massivhaus SV 150 k

Gestaltungsbeispiel – Massivhaus 150 k

EG – Massivhaus SV 150 k

OG – Massivhaus SV 150 k

Stadtvilla mit eine Wohn-Nutzfläche nach DIN von rd. 160 m²

Gestaltungsvorschlag – Massivhaus SV 160 

Gestaltungsvorschlag – Massivhaus SV 160 

EG – Massivhaus SV 160

OG – Massivhaus SV 160

Stadtvilla im mediterranen Stil – Balkon – Fläche nach DIN rund 160 m²

Gestaltungsvorschlag – Massivhaus SV 160 m

Gestaltungsvorschlag – Massivhaus SV 160 m

EG – Massivhaus SV 160 m

OG – Massivhaus SV 160 m

Stadtvilla mit Terrassenüberdachung – Wohnfläche rd. 180 m²

Stadtvilla mit großzügigem Balkon – Wohnfläche nach DIN rd. 120 m²

Stadtvilla mit großzügigem Balkon – Wohnfläche nach DIN rd. 120 m²

Stadtvilla mit Loggia und rd. 180 m² nach DIN

Haus im Bauhausstil mit rd. 140 m² nach DIN

Haus im Bauhausstil mit rd. 150 m² nach DIN

Haus im Bauhausstil für das schmale Grundstück – Balkon – Fläche nach DIN rd. 150 m²

Haus im Bauhausstil – Fläche nach DIN rd. 160 m²

Haus im Bauhausstil, mit Galeriebereich und Freisitz – Fläche nach DIN rd. 164 m²

Einfamilienhaus im Bauhausstil mit rd. 170 m² nach DIN -Balkon-

Haus im Bauhausstil mit rd. 172 m² nach DIN

Haus im Bauhausstil – Balkone – Fläche nach DIN rd. 176 m²

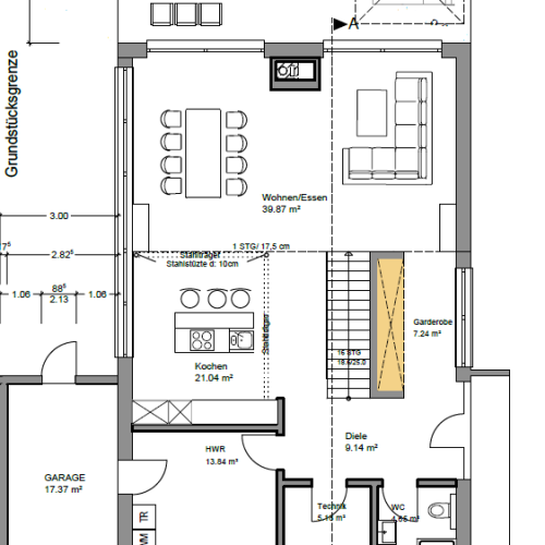
Haus mit Staffelgeschoss und 2 Balkonen – Fläche nach DIN rd. 190 m² –

Haus im Bauhausstil mit rd. 210 m² nach DIN

Haus im Bauhausstil – Balkone – Fläche nach DIN rd. 213 m²

Satteldachhaus – Fläche nach DIN rd.125 m²

Satteldachhaus – Verklinkerung – Flachdachgaube Putz – Fläche nach DIN rd. 130 m²

Haus mit 5 Schlafzimmern – Fläche nach DIN ca. 133 m²-

Haus mit 5 Schlafzimmern und Seiteneingang – Fläche nach DIN ca. 133 m² –

Satteldachhaus mit Freisitzbereich – Fläche nach DIN rd. 142 m²

Haus mit 5 Schlafzimmern – Fläche nach DIN ca. 148 m² –

Haus mit 5 Schlafzimmern und Seiteneingang – Fläche nach DIN rd. 148 m² –

Haus mit Satteldach und Satteldachgaube mit rd. 150 m² nach DIN

Haus mit Satteldach mit rd.160 m² nach DIN

Haus mit Satteldach und Gaube mit rd. 160 m² nach DIN

Haus mit 2 Flachdachgauben und Galerie – Fläche nach DIN ca. 169 m² –

Haus mit Satteldach mit rd.170 m² nach DIN

Haus mit Satteldach und 2 Zwerchgiebeln – Fläche nach DIN rd. 186 m² –

Bungalow mit einer Fläche von rd. 94 m²

Winkelbungalow mit einer Fläche von rd. 128 m²

Winkelbungalow mit einer Fläche von rd. 136 m²

Weitere Planungen folgen

Haus mit grossem Galeriebereich – Wohnfläche nach DIN rd. 180 m² + Galeriebereich

Haus mit geringer Dachneigung und DG-Ausbau – Wohnfläche nach DIN rd. 160 m²

Haus -freistehend- für das schmalere Grundstück – Wohnfläche nach DIN rd. 144 m²

Haus mit versetztem Pultdach – Wohnfläche nach DIN rd. 126 m² –

Pultdachhaus mit rd. 165 m² nach DIN

Doppelhaus mit oder ohne Erker – Fläche nach DIN rd. 128 m²

Doppelhaus mit Erker – Fläche nach DIN rd. 134 m²

Doppelhaus mit Balkon – Fläche nach DIN rd. 143 m²

Doppelhaus mit Gaube – Fläche nach DIN rd. 147 m²

Doppelhaushälfte mit Staffelgeschoss – Wohnfläche nach DIN rd. 158 m²

Weitere Eintragungen in Vorbereitung

MENÜ